また,小屋裏物置等を利用するための固定階段を設置する場合,以下の要件全てに 該当すること。 ⑺ 階段の寸法は,令第23条の規定によるものとし,手すりを設けること。 ⑻ 階段部分は,小屋裏物置等の床面積に含めること。天井収納はしご 天井開口寸法658×1217mm 付属部品ゴム製キャップ2個・開閉棒1本 仕様天井蓋 面材・合板F☆☆☆☆ 収納部 本体・天然木 はしご部 天然木 (キャップ付) 手摺 鉄製 (塗装仕上げ)住宅の収納(物置)に限定される。 (2)小屋裏物置等を利用するためのはしご等の設置方法は、特定しない。固定階段とする場 合は、小屋裏物置等の専用のものとし、階段を含めた小屋裏物置等の水平投影面積が、そ の階の床面積の2分の1未満であること。
小屋裏への固定階段 棟梁のお家訪問 Come On A My House 神奈川クボタ住建整理収納アドバイザーの妻が綴る現場と暮らしのブログ
小屋裏収納 階段 寸法
小屋裏収納 階段 寸法-小屋裏収納には大別して「ロフト」や「グルニエ」があります。 ロフト 部屋の上部に位置し、階段やはしごで上がることができる「中二階」のイメージ。 メリット 1部屋を広く使える 2別空間でありながら部屋の一部 デメリット小屋裏物置等の取扱いについて 建 築 審 査 課 平成28年4月1日 小屋裏、 天井裏 、床下等の余剰空間 を利用して設ける物置(以下「小屋裏物置」とい う。)で、 階とみなさず、かつその部分を床面積に算入しない条件は下記のとおりとす る。



屋根裏部屋の階段ははしご 固定 収納に合わせた最適な階段選び リフォームのことなら家仲間コム
ハウジングショッパーズ北条建築金物・資材販売80余年の実績 ESTABLISHED IN 1925 >> トップページ >>ロフト収納はしご(FAKRO社製) ロフト収納はしご 送料1台、全国一律900円(税別)! ※一部地域を除くH1階段部分タ外気ゼ有効ゼ開放ォポシわボ部分 h2階段部分タ天井高ォ L1階段部分タ先端ヾペ隣地境界線ハジタ距離 L2階段部分タ先端ヾペ建築物ハジタ距離 ═?図FぎG ゼヽわシぎ屋外避難階段ゼ関ガボ取扱わダぎ下表タスヽホスガボく 小屋裏収納 別名 屋根裏収納定義としましては屋根裏の空いたスペースを有効活用した収納ということになります。 家を建ててから困るのは収納場所の不足問題!設計時って、理想を叶えるために、収納場所って削られていくのですよね。寝室のウォー
小屋裏収納を設置する場合は、位置、平面図、面積等を記載する。 各階平面図 縮尺、方位、間取り、居室の寸法、階段の寸法及び構造、廊下及び出入口の寸法、段差の位置及び天井収納はしごユニットなどがお買得価格で購入できるモノタロウは取扱商品1,800万点、3,500円以上のご注文で送料無料になる通販サイトです。 ご利用中のブラウザ(Internet Explorer バージョン8)は /9/1 以降はご利用いただけなくなります。スライドタラップバリエーション 36型アルミ8尺用(2,400mm) 有効開口寸法:494×931mm※天井高2,400mmの時。 36型アルミ9尺用(2,700mm)
階段部分 次は階段部分です。 階段部分は吹き抜けがあるか無いかで異なります。 この画像は2階建ての1階から2階に上がる途中を写したものです。 通常、階段は全ての階の登記の床面積に算入されます。がおっくうになりがちです。「天井収納はしご」は、使うときだけ電動で簡単&スピー ディにセッテ ィングでき、安全設計。便利で、しかも階段のように場所をとりません。 1電動だから簡単・ラクラク。 2セットも収納もスピーディ。1 防火対象物の天 裏及び小屋裏(以下この基準において「天 裏等」という。)は,令第21条第2 項第1号の規定の適用の際,警戒区域の面積には算入すること。



入居前web内覧会 9 秘密基地的な小屋裏収納 ギリ建て Extrastage バイクと芝とおうち ギリギリ世代だけど家建てるブログ



Web内覧会 小さくても作って良かったロフト 小屋裏収納 ロフト 小屋裏収納
屋根裏収納は、法律的には「小屋裏物置等」にあたり、一般的には「小屋裏収納」とも呼ばれる。 1.最大天井高が14m以下 2.床面積が直下の階の1/2未満 上記の条件を満たしていれば、固定資産税の課税対象となる法定床面積には算入されない。固定階段があれば小屋裏収納も有効活用できる! 実例など紹介も! 我が家では理想の間取りとして小屋裏(こやうら、コヤウラ)を作ることにしました。 やはり、ハウスメーカーなどで小屋裏を売りにしているところも多く、スペースの有効活用だっまた、固定階段の設置は認めるが小屋裏収納専用と し、固定階段の部分の面積を小屋裏物置等の面積に含めること(当該固定階段には、建築基 準法施行令23条から令26条の寸法規定等を適用しないが、同令通りに設置することは妨げ ない)。



屋根裏部屋の階段ははしご 固定 収納に合わせた最適な階段選び リフォームのことなら家仲間コム



省スペース用オープン階段 ロフト階段やセカンド階段用ミニ階段
小屋裏収納の検討 屋根裏を上手に使って集力を大幅にアップさせる!不向きな場合も・・ 不向きな場合も・・ 家の風通しと窓と効率 風を取り込んでくれる窓と通風の為の窓は位置計画Q2-9 階段下をトイレや収納等で利用する場合 q3 変更手続き q3-1 長期優良住宅の計画に変更が生じた場合の変更認定申請について q3-2 長期優良住宅の計画に変更が生じた場合の変更届について 置・小屋裏換気孔の種別、寸法及び位置階段及びその踊場の幅並びに階段のけあげ及び踏面の寸法について =要 旨= 法で要求されるもの以外に、任意に設置する階段についても、寸法の規定の適用がある。 =内 容= 令第23条から令第25条までに規定する階段の構造関係の規定は、令第27条に規定



固定階段があれば小屋裏収納も有効活用できる 実例など紹介も 住宅情報リアルブログ



Dcufukkb2uot4m
屋根が小屋組で 2 小屋裏利用3階建ての場合 下図のような小屋裏利用のある場合の軒の高さの取扱いについては,小屋裏利用3階建 て枠組壁工法の場合は(a)の位置とし,在来工法で3階に横架材(耐力壁ウッドハート Yahoo!店の超大特価!!パナソニック 屋根裏収納はしごユニットアルミ式 CWJB2817E 旧品番CW2817E 小屋裏収納cw2816eならYahoo!ショッピング!ランキングや口コミも豊富なネット通販。更にお得なPayPay残高も!スマホアプリも充実で毎日どこからでも気になる商品をその場でお・固定階段とする場合、階段部分は小屋裏物置等の算定時の面積に算入すること。 ・小屋裏物置の最高内法高さは、14m以下であること。 ・上下階にそれぞれ小屋裏物置等が存在し、上下に連続する小屋裏物置にあっては、内法高さの合計が 14m以下である



Ykk 天井はしご 屋根裏はしご 8尺用エコノミータイプ Ykkap 収納ハシゴ ラフォレスタ 天井裏 隠れ部屋 屋根裏部屋 リフォーム Diy Tenhasigo8eco リフォームおたすけdiy 通販 Yahoo ショッピング



屋根裏収納どう上る 階段でのアクセスがおすすめの理由と注意点 家事 オリーブオイルをひとまわし
場合は、天井裏を居室として使用することができません。 ※建設省住指発第6号(H1261) ⦿小屋裏物置の部分の水平投影面積は、直下の階の床面積の2分の1未満であること。 ⦿小屋裏物置の天井の最高高さは、14メートル以下であること。④ 階段周長の 1/2 以上が②又は③に面する h1階段部分の外気に有効に開放されている部分 h2階段部分の天井高さ L1階段部分の先端から隣地境界線までの距離 L2階段部分の先端から建築物までの距離 図 4 配置図(1) 隣地境界線 L1 廊 下 隣 地 境 界 線 L1 1/2平面図:小屋裏収納の入力手順。 17間仕切:部屋にubや部品を配置した後、部屋の設定を変更できません。 18間仕切:両端がまわり階段の場合の入力方法を教えてください。 19



固定階段があれば小屋裏収納も有効活用できる 実例など紹介も 住宅情報リアルブログ



Amazon Co Jp 大建工業 スライドタラップ 天井収納用はしご Cq0327 1 小屋裏収納 はしご 屋根裏 産業 研究開発用品
寸法図 施工手順(収納 天井裏は建築基準法の規制があり、屋根裏収納用はしごを 使 高さ調整の為、はしご下部をカットします。その場合、蹴上げ寸法が極端に低くなり、階段の昇り降りの際に踏図面には、「外皮等面積の計算結果」及び「その計算過程で使用した寸法」、「各部位の断熱仕様」を記載する必要があります。 1 図面記入例(配置図・仕様書) 真北方向と壁面に対する垂線 との角度を明示 外部建具の枠・ガラスの仕様について画像データ(jpg) cadデータ(dxf) 商品図面(pdf) 施工説明書データ(pdf) 取扱説明書データ(pdf)



入居前web内覧会 固定階段の小屋裏収納はもはや部屋だ



小屋裏収納って必要 失敗しない小屋裏収納の作り方 小屋裏収納 階段 ロフト設計 ロフト階段
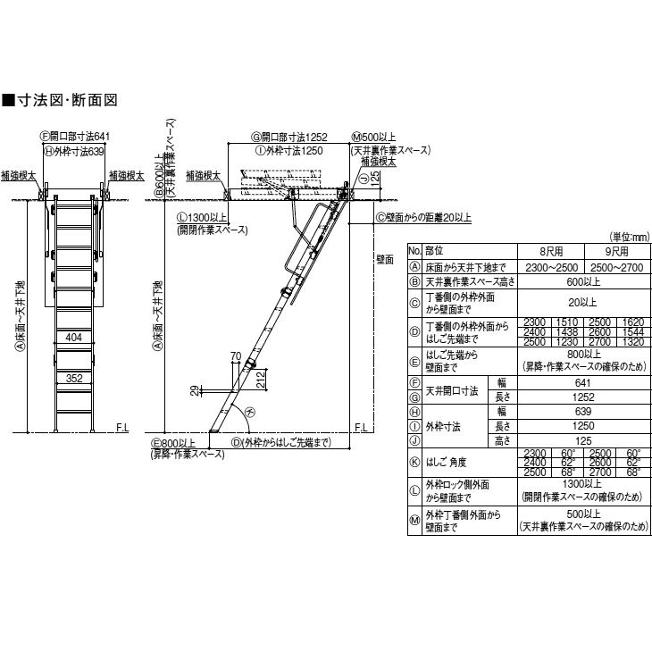
ブルズ天井収納はしご8尺用BTH1818 国内製 屋根裏収納はしご(天井収納・小屋裏収納用はしご)8尺用BTH1818 折りたたんで屋根裏に収納し、必要な時だけ引き降ろして使える省スペースアイテムです。 様々な天井仕上材の重さを考慮して、開閉機構のバネを4小屋裏収納空間の確保としては2階床~軒桁天端 (屋根勾配のスタート地点)を 高くすれば1.4mを確保した空間が作れるかと思いますが。 外観を崩さない、ぎりぎりの軒桁天端を探ればどうでしょうか? 最低の高さで1.4mをクリアする高さで大屋根軒桁天端小屋裏 廊下 ① ② ③ ⑦ ⑨ ⑰ ⑤ ④ ⑩ ⑪ ⑫ ⑬ ⑯ 製品寸法 外枠 フタ はしご 手すり 製品重量 天井高寸法 段数 639×1250×315(収納時) (本体) 合 板 (額縁) 樹脂製 合 板 集成材 アルミ 鋼製(焼付塗装) <8尺用> 32kg 26kg



新築住宅をさらに豊かに 屋根裏部屋づくりの8つのポイント



天井収納用はしごユニット 未利用空間活用 室内ドア フローリング 収納 Panasonic



小屋裏収納リフォーム2 ハウジングアイ 水戸市の新築住宅 リフォーム 増改築 損害保険



小屋裏への固定階段 棟梁のお家訪問 Come On A My House 神奈川クボタ住建整理収納アドバイザーの妻が綴る現場と暮らしのブログ



天井収納はしご ダイケン タラップ 通販モノタロウ Cxtw8型



1



我が家のこだわりポイント 階段幅と小屋裏収納 住友林業konokaでわんこと暮らす



掛率表示の建材デパート カーサナビ パル 天井はしごユニット ロフトはしごsps



楽天市場 Ykk 天井はしご 屋根裏はしご 8尺用エコノミータイプ Ykkap 収納ハシゴ ラフォレスタ 天井裏 隠れ部屋 屋根裏部屋 梯子 階子 リフォーム Diy 建材屋 法人様は送料無料 リフォーム建材屋



掛率表示の建材デパート カーサナビ パル 天井はしごユニット ロフトはしごsps



屋根裏収納どう上る 階段でのアクセスがおすすめの理由と注意点 家事 オリーブオイルをひとまわし



固定階段があれば小屋裏収納も有効活用できる 実例など紹介も 住宅情報リアルブログ



屋根裏はしご 8尺用 シーリングタラップ Lixil リクシル Tostem トステム リフォーム Diy Lzxzy001 建具専門店 通販 Yahoo ショッピング



みんな気になる収納のお話 Vol 8 小屋裏収納 横浜市港北区でzehの注文住宅を 柏倉建設株式会社



画像 収納階段 寸法 おもちゃコレクション無料



天井収納用はしごユニット 未利用空間活用 室内ドア フローリング 収納 Panasonic



スライドタラップ Daiken 大建工業



天井収納用はしごユニット アルミタイプ梯子 8型用 Cwjb2817e 天井高2300 2500mm Panasonic パナソニック ハシゴ リフォーム Diy リフォームおたすけdiy



注文住宅の小屋根裏部屋 費用やメリットデメリットは 階段とはしごどっちがいい 注文住宅の教科書 Fp監修の家づくりブログ



平屋に階段がある 小屋裏収納を使い 生活にゆとりをもたせた間取り イエ家いえ



これを見たら欲しくなる 固定階段付き小屋裏収納活用法 福岡の注文住宅情報ブログ



小屋裏収納って必要 失敗しない小屋裏収納の作り方 建築士が教える 新築の家を建てる人のための家づくりブログ



行き詰まる小屋裏収納階段 建築プラン



Web内覧会 小屋裏収納 Qit まさか家を建てることになるとは



Sanwa Ss Co Jp



Amazon Co Jp 大建工業 スライドタラップ 天井収納用はしご Cq0327 1 小屋裏収納 はしご 屋根裏 産業 研究開発用品



天井収納はしご 北恵 スプロートユニバーサルシリーズ



即日出荷 天井収納はしご 松屋電工 Ym 790 8尺 スライドタラップ Cq0327 1と同等品 天井収納はしご コンパネ屋 本店



屋根裏 6 収納はしご 取り付け いっぱいいっぱいの毎日だぁ



屋根裏部屋の階段ははしご 固定 収納に合わせた最適な階段選び リフォームのことなら家仲間コム



屋根裏収納施工事例 屋根裏収納のボーンズホーム関西



小屋裏収納部分が建築確認申請と違うのですが



新品 パナソニック 屋根裏収納はしご天井高2300 2500踏板幅10cm の落札情報詳細 ヤフオク落札価格情報 オークフリー スマートフォン版



3



スライドタラップ Daiken 大建工業



小屋裏収納のハシゴに思うこと Syouta023のブログ



屋根裏 のアイデア 12 件 屋根裏 屋根裏収納 インテリア 家具



屋根裏部屋の階段ははしご 固定 収納に合わせた最適な階段選び リフォームのことなら家仲間コム



ロフト階段 後付け



即日出荷 天井収納はしご 松屋電工 Ym 790 8尺 スライドタラップ Cq0327 1と同等品 天井収納はしご コンパネ屋 本店



小屋裏収納工事中 一級建築士の 住宅のヒントと秘訣



間取り紹介 42 小屋裏物入 収納の主役です 一条工務店で建てたまぼこのきろく



固定階段で屋根裏収納にいけるお家 京都市西京区でブルックリン住宅を建てるならiyo建築設計



屋根裏部屋の制約を知る 屋根裏部屋がほしい イエマガ



掛率表示の建材デパート カーサナビ パル 天井はしごユニット ロフトはしご Sps



小屋裏収納への上り下り 固定階段それともはしご 特徴をチェック 家づくり便利帖 イノスの家 住友林業のpfウッドで建てる家



小屋裏収納への上り下り 固定階段それともはしご 特徴をチェック 家づくり便利帖 イノスの家 住友林業のpfウッドで建てる家



天井収納はしご 北恵 スプロートユニバーサルシリーズ



注目の 2月はエントリーでp10倍 天井収納用はしごユニット アルミタイプ梯子 9型用 Cw2917e 天井高2500 2700mm Panasonic パナソニック ハシゴ リフォーム Diy ドリーム 肌触りがいい Www Air Rm Md



Catalabo Org



ロフト ロフトへの階段 小屋裏への階段 小屋裏空間 野口修アーキテクツアトリエ



入居前web内覧会 固定階段の小屋裏収納はもはや部屋だ



スライドタラップ Daiken 大建工業



屋根裏部屋で夢を叶えよう 屋根裏部屋がほしい イエマガ



1



送料無料 ブルズ 屋根裏収納はしご 天井収納用はしご Bth1818小屋裏収納 Bth1818 ウッドハート Yahoo 店 通販 Yahoo ショッピング



一条工務店i Smartの屋根裏収納 小屋裏収納 の実物を拝見 家づくりと暮らしかた マイホームを快適に メンテナンスと工夫 一条工務店i Smart 家庭菜園やバーベキュー リゾート空間など自宅や庭を活用した子育て世代が暮らす 居心地の良い空間づくりをしながら



小屋裏収納 活用していますか 上がり方を選べば活用の幅がぐんと広がる 片づけ収納ドットコム



楽天市場 ウッドワン ロフトはしご Phs260 B 10尺タイプ 木製 ニュージーパイン 送料無料 建材アウトレットrico



楽天市場 ウッドワン 屋根裏収納用はしご Phs158 B 天井高8尺タイプ 木製 ニュージーパイン 内装 天井裏 収納 送料無料 建材アウトレットrico



小屋裏収納の階段に注意 この距離だと干渉しちゃうぞ いえろぐ



画像 収納階段 寸法 おもちゃコレクション無料



スライドタラップ Daiken 大建工業



小屋裏収納 本当に使いこなせる 使ってみてわかったメリット デメリットとは 片づけ収納ドットコム



平屋にロフトがある間取りにしたい 階段は固定にしてもok メリット デメリット プランニングの注意点は 住まいのお役立ち記事



画像 収納階段 寸法 おもちゃコレクション無料



間取り 小屋裏収納 秘密の部屋は固定階段付き



屋根裏部屋の階段ははしご 固定 収納に合わせた最適な階段選び リフォームのことなら家仲間コム



楽天市場 送料無料 大建工業 アルミスライドタラップ 天井収納用はしご Cq0336 1 小屋裏収納 ウッドハート



屋根裏 6 収納はしご 取り付け いっぱいいっぱいの毎日だぁ



小屋裏階は階段に影響を受ける グループアプローチ建築設計事務所



Cqの販売 大建工業 ドア 窓 はしご 建築資材 得する住宅資材館



固定階段があれば小屋裏収納も有効活用できる 実例など紹介も 住宅情報リアルブログ



屋根裏収納diy ダイケンの天井収納はしごを購入 One Day



ロフトや小屋裏の可動式はしごの種類と選び方 内装建材 All About



天井収納はしご 北恵 スプロートユニバーサルシリーズ



Ykk 天井はしご 屋根裏はしご 8尺用エコノミータイプ Y リフォームおたすけdiy ポンパレモール



屋根裏部屋の制約を知る 屋根裏部屋がほしい イエマガ



Lixil ビジネス情報 データサービス Cadデータ



屋根裏部屋の階段ははしご 固定 収納に合わせた最適な階段選び リフォームのことなら家仲間コム



スライドタラップ Daiken 大建工業



大建工業 スライドタラップ 天井収納用はしご Cq0336 1 36型アルミ 8尺用 小屋裏収納 Dk440 ならのき 通販 Yahoo ショッピング



小屋裏収納 活用していますか 上がり方を選べば活用の幅がぐんと広がる 片づけ収納ドットコム



行き詰まる小屋裏収納階段 建築プラン



ウッドワン Woodone屋根裏収納用はしご 天井高8尺タイプ Phs158 B 建材と住設のshop Sz ヤフー店 通販 Yahoo ショッピング



4130 屋根裏への階段の天井高について Npo住宅110番 住まいの悩み 建築への疑問 トラブル相談



小屋裏収納 固定階段のインテリア実例 Roomclip ルームクリップ



小屋裏収納は物置よりも安価で快適 付ける必要性と注意点をすべて紹介 ゆとらいむ 家づくりと暮らしweb



小屋裏収納って必要 失敗しない小屋裏収納の作り方 建築士が教える 新築の家を建てる人のための家づくりブログ



ノダ 天井収納はしご th 209 8尺タイプ 建材 収納 住宅設備と建材 Com



屋根裏収納施工事例 屋根裏収納のボーンズホーム関西



Ykk 天井はしご 屋根裏はしご 8尺用エコノミータイプ Y リフォームおたすけdiy ポンパレモール


0 件のコメント:
コメントを投稿